Carports
This Information Bulletin describes the minimum requirements for obtaining a Building Permit for carports accessory to a single-family dwelling unit or duplex. The carport shall be constructed to comply with this information bulletin, or product evaluation report, research published by International Code Council Evaluation Services (ICC-ES) or a similar approved product evaluation agency.
I. Definition
A carport is a covered motor vehicle parking structure accessory to a one or two-family dwelling units. It may be freestanding or attached to another structure. A carport cannot exceed 1,000 square feet in area or one story in height and must be entirely open on two or more sides except for structural supports per California Residential Code (CRC) R309.2. There can be no enclosed use above a carport. Any carport which does not meet the above definition must comply with all regulations relating to a private garage (CRC R309.2).
II. When is a Permit Required?
A building permit is required for any new carport or for repair or enclosure of an existing carport. A final inspection must be passed by the City of San Diego before the work is considered complete.
III. Submittal Requirements
- Forms
- Project Contacts Information (DS-345)
Owner-Builder Verification Form (DS-3042)
This form is required if the property owner is acting as the general contractor. If you are not a licensed contractor and intend on performing the work yourself or hiring licensed subcontractors, an Owner-Builder Verification form must be completed and submitted with your project documents.
Plans
Plans must be drawn to scale and be of sufficient clarity to indicate the location, nature and extent of the proposed work. Existing and proposed construction should be clearly shown. Plans must show that all work conforms to the provisions of the current edition of the California Residential Code (CRC), Zoning Ordinances and all other relevant laws, ordinances and regulations applicable in the City of San Diego.
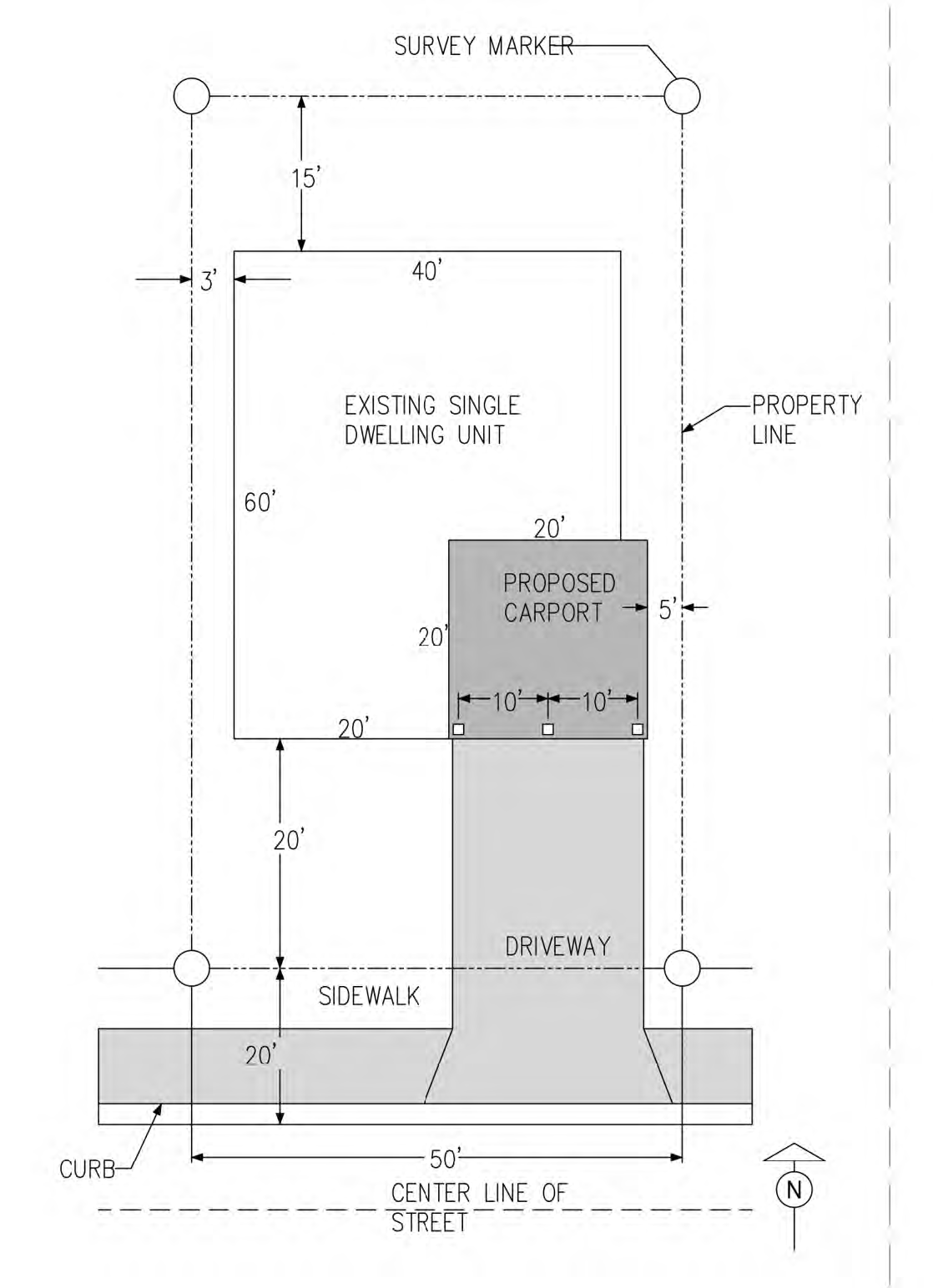
- Site plan and vicinity map (See Figure 1). See Information Bulletin 122 for detailed information.
- Foundation and framing plans. Provide one of the following:
- Building permit template (specifications in this information bulletin) with the proposed footing sizes, rafter sizes, and beam sizes highlighted, or
- Copy of (ICC-ES) evaluation reports approved plan available from your material supplier, or
- Copy of any other plans. These plans should include a roof framing plan, foundation plan, elevations, cross-sections, and connection details. The copy also shall be permanently incorporated and imprinted into plans submitted for permit approval. Structural calculations may be required for designs that do not conform to this Information Bulletin.
- Floor plans. For carports within six feet of a dwelling, include a floor plan of the dwelling and show the following information:
- Use and dimensions of all rooms adjacent to the carport.
- Size and type of all windows and doors from those rooms.
IV. Construction Specifications
- Structural Design Criteria
- Size of rafters and beams (See Table B and C).
- Size of posts shall be based on the maximum height of the posts above the carport slab:
- Height from 0 to 8 feet: 4x4 minimum
- Height from 8 to 10 feet: 6x6 minimum
- Square pad footing under carport posts (See Table A).
- Carport posts and beams must be interconnected with diagonal braces, with each brace connected at the lower and upper end per Figures 2 & 3. Decorative-type bracing may be substituted if of similar size and fastened as required in this Information Bulletin.
- Posts shall be anchored to foundations with a standard approved post base installed per the manufacturer’s installation instructions (Figure 5).
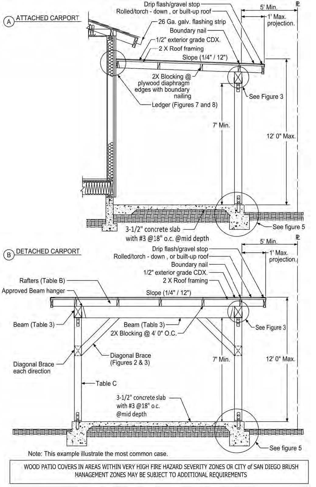
- When it is desired to connect and support one side of the carport from a structure by attaching it directly to the dwelling, the beam may be replaced on the side attached to the dwelling unit with a ledger having the same size as the rafters (See Figures 7 & 8). Carport rafters shall not be solely supported by the existing rafter tails or eave fascia of the house.
- Construction material specifications for the carport shall be as follows:
- Concrete mix for footings and slab must meet a minimum compressive strength of f’c = 2,500 psi.
- Lumber must be Douglas fir-larch No. 2 or better. All lumber must be preservative-treated or naturally resistant to decay and termites when required by the (CRC R317.1).
- Allowable soil bearing pressure is assumed to be not less than 1,500 PSF.
- Carports shall be covered with listed Class A roof coverings. If nominal one-inch-thick roof sheathing boards are proposed, the roof framing may include rafters spaced at not more than 32” on center. Roofs shall be sloped 1/4 inch by 12 inches minimum.
- If carport posts are located less than five feet from the property line, the carport must be protected with a one-hour fire-resistive wall extending from the foundation to the underside of the roof sheathing on the side of the carport parallel to the property line [CRC Table R302.1(1)]. No openings shall be permitted in this wall if it is located less than three feet from the property line. Area of wall openings such as doors and windows shall not exceed 25% of gross area of the wall when the wall will be located at a distance between three and five feet from the property line [CRC Table R302.1(1)].
- No fire protection is required for the common wall between a one- or two-dwelling unit structure and a carport with no enclosed spaces above and having at least two or more sides that are completely open (CRC R302.6).
- When exterior wall openings are required for light and/or ventilation and they are located in the exterior wall of the dwelling common to an attached carport, the carport’s roof shall be located not less than seven feet above the parking surface when measured to the underside of the rafters (CRC R305.1).
- All electrical wiring and equipment must comply with regulations for exterior installation.
- Carports located in the environmentally sensitive lands and brush management zones must comply with Sections 143.0101 and 142.0412 of the SDMC.
- Carports located in the Very High Fire Hazard Severity Zone or within Brush Management Zones, governed by the City of San Diego’s Brush Management Ordinances, may need to comply with c additional fire protection requirements.
V. Public Property Curb Cuts
Cutting the curb, closing an existing curb cut or paving a driveway on public property requires a separate permit and must comply with parking regulations Division 5 of the SDMC [142.0501]. See Information Bulletin 165, Obtaining a Public Right-of-Way Permit for Standard Public Improvements.
VI. Options for Service
Plans for a carport require a building permit and must be submitted electronically through the online portal, selecting Building Permit.
Project Fees
The following fees are required to be paid prior to review unless otherwise indicated below. For your convenience, DSD offers online payments. Payment may also be made in person by cash, check, debit card, Visa or MasterCard credit cards. Checks shall be in the exact amount, drawn on US banks, and made payable to the “City Treasurer.”
Refer to Information Bulletin 501, Fee Schedule, Construction Permits – Structures, for all applicable fees.
Please note that plan check fees and some administrative fees are non-refundable, but inspection fees may be refundable. For additional refund information, see the Refund Policy noted within Refund Application Form DS-721.
Inspections
For inspection requirements, refer to Information Bulletin 120.
References
Figures and Tables
Figure 1 – Sample Carport Site Plan

Figure 2 – Typical Carport

Figure 3 – Post-To-Girder Connections

Figure 4 – Section View of a Carport

Figure 5 – Typical Footing Detail

Figure 6 - Typical Eave Details

Figure 7 – Typical Rafter Attachment Details

Figure 8 – Typical Ledger Details

Table A – Minimum Square Footing Size (inches)*
Post Spacing (Feet) | Rafter Span (Feet)1 | |||||||
6 | 8 | 10 | 12 | 14 | 16 | 18 | 20 | |
4 | 12 | 12 | 12 | 12 | 12 | 12 | 12 | 12 |
6 | 12 | 12 | 12 | 12 | 12 | 12 | 12 | 14 |
8 | 12 | 12 | 12 | 12 | 12 | 14 | 14 | 14 |
10 | 12 | 12 | 12 | 14 | 14 | 14 | 16 | 16 |
12 | 12 | 12 | 14 | 14 | 16 | 16 | 18 | 18 |
14 | 12 | 12 | 14 | 16 | 16 | 18 | 18 | 20 |
16 | 12 | 14 | 14 | 16 | 18 | 18 | 20 | 20 |
18 | 12 | 14 | 16 | 18 | 18 | 20 | 20 | 22 |
20 | 14 | 14 | 16 | 18 | 20 | 20 | 22 | 24 |
* See dimension A on Figure 5
1For footing reinforcement, See Figure 5
Table B – Minimum Rafter Spacing (inches)
Rafter Span | Rafter Spacing Center-to Center (Inches)1,2 | ||
(Feet) | 12 5/16" plywood sheathing | 16 3/8" plywood sheathing | 24 1/2" plywood sheathing |
6 | 2x4 | 2x4 | 2x4 |
7 | 2x4 | 2x4 | 2x4 |
8 | 2x4 | 2x4 | 2x6 |
9 | 2 x 4 | 2 x 6 | 2 x 6 |
10 | 2 x 6 | 2 x 6 | 2 x 6 |
11 | 2 x 6 | 2 x 6 | 2 x 6 |
12 | 2 x 6 | 2 x 6 | 2 x 6 |
13 | 2 x 6 | 2 x 6 | 2 x 8 |
14 | 2 x 6 | 2 x 6 | 2 x 8 |
15 | 2 x 6 | 2 x 8 | 2 x 8 |
16 | 2 x 8 | 2 x 8 | 2 x 10 |
17 | 2 x 8 | 2 x 8 | 2 x 10 |
18 | 2 x 8 | 2 x 8 | 2 x 10 |
19 | 2 x 8 | 2 x 10 | 2 x 12 |
20 | 2 x 8 | 2 x 10 | 2 x 12 |
1 Deflection based on L/240 (LL only)
2 Load Duration Factor = 1
Table C – Minimum Beam Sizes (inches)
Post Spacing | Rafter Span (Feet)1,2 | |||||||||
(Feet) | 4 | 6 | 8 | 10 | 12 | 14 | 16 | 18 | 20 | |
4 | 4 x 4 | 4 x 4 | 4 x 4 | 4 x 4 | 4 x 4 | 4 x 4 | 4 x 4 | 4 x 4 | 4 x 4 | |
6 | 4 x 4 | 4 x 4 | 4 x 4 | 4 x 4 | 4 x 4 | 4 x 4 | 4 x 4 | 4 x 4 | 4 x 6 | |
8 | 4 x 4 | 4 x 4 | 4 x 6 | 4 x 6 | 4 x 6 | 4 x 6 | 4 x 6 | 4 x 6 | 4 x 6 | |
10 | 4 x 4 | 4 x 6 | 4 x 6 | 4 x 6 | 4 x 6 | 4 x 6 | 4 x 6 | 4 x 8 | 4 x 8 | |
12 | 4 x 6 | 4 x 6 | 4 x 6 | 4 x 8 | 4 x 8 | 4 x 8 | 4 x 8 | 4 x 8 | 4 x 10 | |
6 x 8 | 6 x 8 | 6 x 8 | 6 x 8 | |||||||
14 | 4 x 6 | 4 x 8 | 4 x 8 | 4 x 8 | 4 x 8 | 4 x 10 | 4 x 10 | 4 x 10 | 4 x 10 | |
6 x 8 | 6 x 8 | 6 x 8 | 6 x 10 | 6 x 10 | 6 x 10 | |||||
16 | 4 x 8 | 4 x 8 | 4 x 8 | 4 x 10 | 4 x 10 | 4 x 10 | 4 x 12 | 4 x 12 | 4 x 14 | |
6 x 8 | 6 x 8 | 6 x 8 | 6 x 8 | 6 x 10 | 6 x 10 | 6 x 10 | 6 x 10 | |||
18 | 4 x 8 | 4 x 8 | 4 x 10 | 4 x 10 | 4 x 10 | 4 x 12 | 4 x 12 | 4 x 14 | 4 x 14 | |
6 x 8 | 6 x 8 | 6 x 8 | 6 x 10 | 6 x 10 | 6 x 10 | 6 x 12 | 6 x 12 | |||
20 | 4 x 8 | 4 x 10 | 4 x 10 | 4 x 12 | 4 x 12 | 4 x 14 | 4 x 14 | |||
6 x 8 | 6 x 8 | 6 x 10 | 6 x 10 | 6 x 10 | 6 x 12 | 6 x 12 | 6 x 12 | 6 x 14 |
1Deflection based on L/360 (LL only)
2 Load Duration Factor = 1
Previous Versions of this Information Bulletin
This section contains previous versions of this Information Bulletin by the last day they were effective.